두아즈의 AI 솔루션을 사용하여
복잡한 산업 문서와 데이터를
효율적으로 분석하고 관리하세요
Do AZ
Doaz
두아즈는 수십 년간 쌓아온 산업 데이터들을 AI 기술을 통해 효율적으로 분석하고 관리할 수 있도록 돕습니다.
Now
7개의 파트너사와 15개의 대형 프로젝트들을 진행하였고, 산업 전반으로 솔루션을 점진적으로 확장하고 있습니다.

Geo AI
공간·건설 AI 솔루션
현장 및 설계 검토를 위한 지리공간·건설 데이터 AI 분석.

Inscanner
도면 보조단열재 누락 탐지
도면에서 누락된 보조 단열재를 높은 정확도로 자동 탐지합니다.

PointChecker
문서 전문 분석 RAG 챗봇
다중 문서 분석, 출처 표시, 체크리스트 기반 검토를 지원합니다.

KT Estate
듀얼모드 문서 검토
부동산·계약 업무를 위한 AI 문서 검토 솔루션.

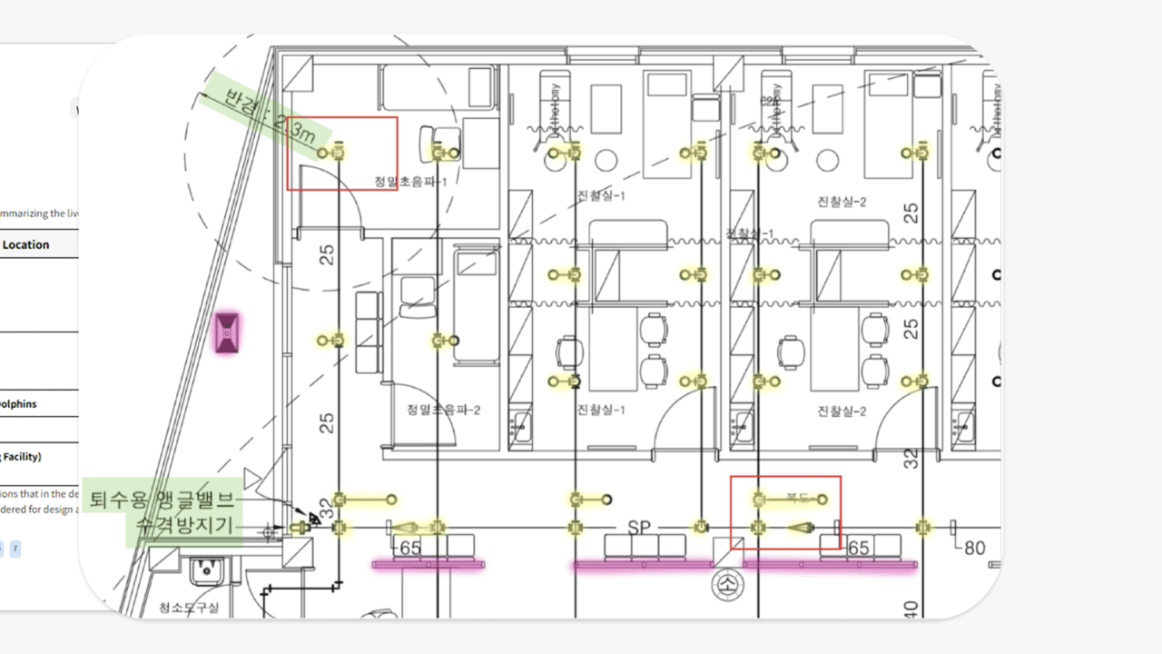
Sobang
소방기호 자동 탐지
도면 내 소방·안전 기호를 자동 탐지하여 규정 준수 검토를 지원합니다.

SAFFY
안전·품질 플랫폼
산업 현장을 위한 AI 기반 안전·품질 관리 플랫폼.